Allure

This thoughtfully designed home offers the perfect balance of space, comfort, and functionality for modern family living.

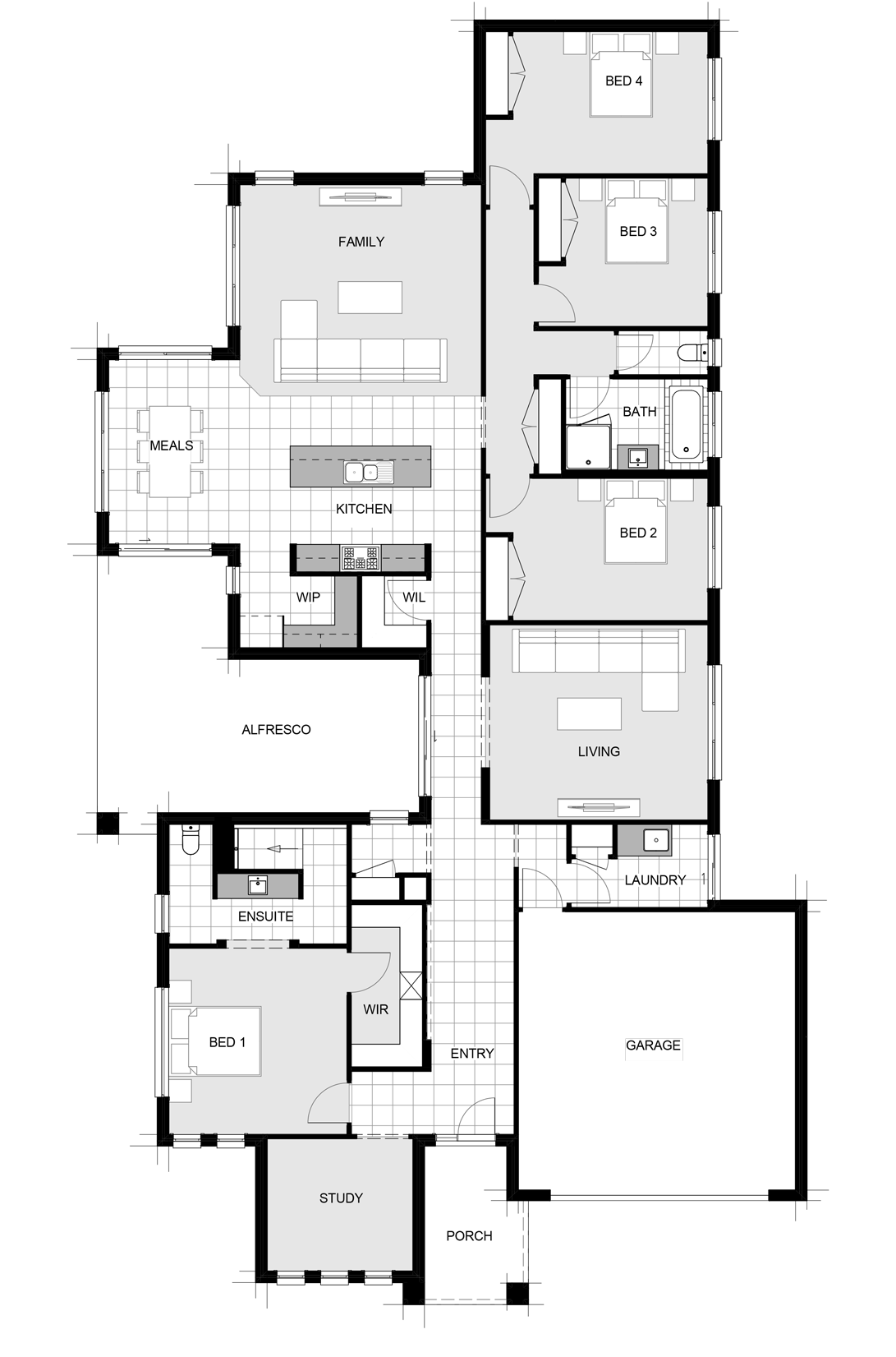
Featuring four generous bedrooms plus a dedicated study, the layout provides both private retreats and inviting shared spaces. The open-plan kitchen, meals, and family area forms the heart of the home, flowing seamlessly to the alfresco for effortless indoor–outdoor entertaining. A separate living room adds flexibility for relaxation or entertaining, while the private master suite includes a walk-in robe and ensuite. With ample storage, a well-appointed laundry, and a double garage, this home is designed to suit growing families and contemporary lifestyles.

Allure

3
2
2
2

Specifications

House
181.07 m2 (19.49sq’s)
Garage
41.19 m2 (4.43q’s)
Porch
5.53 m2 (0.60q’s)
Alfresco
11.15 m2 (1.20sq’s)
Plan Width
14,150mm
Plan Length
21,950mm
Total
238.94 m2 (25.72sq’s)

Sizes

Master
3.3m x 3.4m
Bedroom 2
3.1m x 3.6m
Bedroom 3
3.1m x 3.6m
Family
4.0m x 4.6m
Kitchen
2.7m x 4.6m
Meals
3.1m x 4.6m
Living
4.2m x 4.2m
Study
2.9m x 2.8m
Garage
6.1m x 6.0m
3
2
2
2

Specifications

House
210.82 m2 (22.69sq’s)
Garage
42.09 m2 (4.53q’s)
Porch
7.09 m2 (0.76q’s)
Alfresco
31.05 m2 (3.34sq’s)
Plan Width
15,590mm
Plan Length
26,630mm
Total
291.05 m2 (31.32sq’s)

Sizes

Master
3.6m x 3.9m
Bedroom 2
3.0m x 3.8m
Bedroom 3
3.0m x 3.8m
Family
4.5m x 5.3m
Kitchen
3.5m x 3.1m
Meals
4.0m x 2.9m
Living
4.4m x 4.3m
Study
2.9m x 3.1m
Garage
6.1m x 6.1m
4
2
2
2

Specifications

House
236.37 m2 (25.44sq’s)
Garage
41.92 m2 (4.51q’s)
Porch
7.60 m2 (0.82q’s)
Alfresco
31.05 m2 (3.34sq’s)
Plan Width
15,590mm
Plan Length
28,190mm
Total
316.94 m2 (34.11sq’s)

Sizes

Master
4.1m x 3.9m
Bedroom 2
3.1m x 3.8m
Bedroom 3
3.1m x 3.2m
Bedroom 4
3.1m x 3.8m
Family
4.5m x 5.3m
Kitchen
3.2m x 3.1m
Meals
4.0m x 2.9m
Living
4.0m x 4.3m
Study
2.9m x 3.2m
Garage
6.1m x 6.1m
4
2
2
2

Specifications

House
246.37 m2 (26.52sq’s)
Garage
41.84 m2 (4.50q’s)
Porch
7.60 m2 (0.82q’s)
Alfresco
31.05 m2 (3.34sq’s)
Plan Width
15,590mm
Plan Length
28,190mm
Total
326.86 m2 (35.18sq’s)

Sizes

Master
4.1m x 3.9m
Bedroom 2
3.1m x 4.3m
Bedroom 3
3.3m x 3.1m
Bedroom 4
3.1m x 4.3m
Family
4.6m x 5.3m
Kitchen
3.5m x 3.1m
Meals
4.0m x 2.9m
Living
4.3m x 4.8m
Study
2.9m x 3.2m
Garage
6.1m x 6.1m

Warrnambool

Ballarat

Get in touch

Your details will remain completely confidential, the information collected is only used for initial client contact and is not for emailing of news or updates.