Selwood

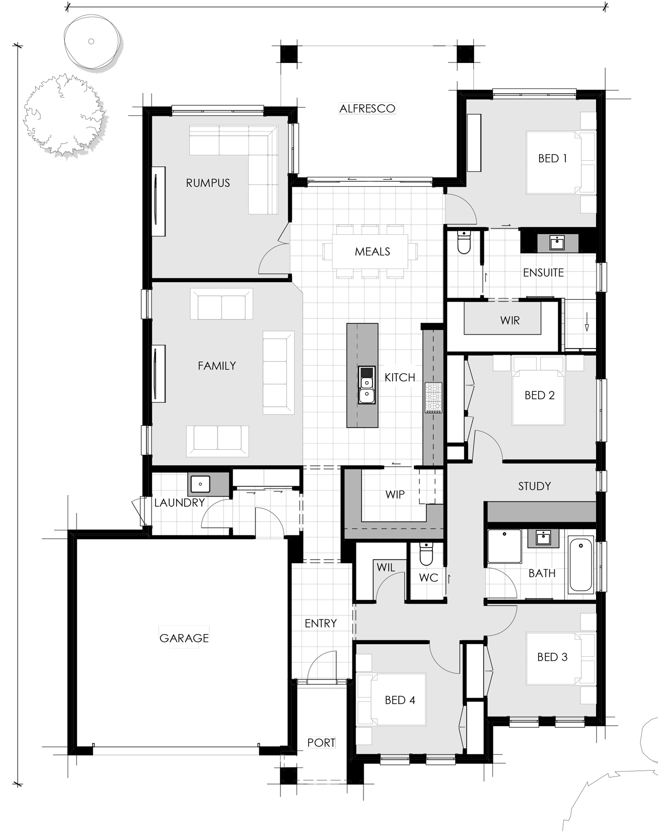
This well-zoned design offers generous living spaces and effortless functionality for modern family life.

At the centre of the home, the open-plan kitchen, meals, and family area connects seamlessly to the alfresco, creating an ideal setting for everyday living and entertaining. A private master suite with walk-in robe and ensuite is thoughtfully positioned away from the remaining bedrooms, which are complemented by a separate retreat for added flexibility. With a walk-in pantry, practical laundry, and a double garage, this home is designed to adapt to growing families and contemporary lifestyles.

Selwood

4
2
2
2

Specifications

House
182.40m2 (19.63sq’s)
Garage
41.36m2 (4.45sq’s)
Portico
4.28m2 (0.46sq’s)
Alfresco
15.55m2 (1.67sq’s)
Plan Width
15,470mm
Plan Length
19,790mm
Total
243.59m2 (26.21sq's)

Sizes

Master
3.6m x 3.5m
Bedroom 2
3.1m x 3.6m
Bedroom 3
3.3m x 3.1m
Bedroom 4
3.2m x 3.1m
Family
5.3m x 4.2m
Kitchen
4.5m x 2.9m
Meals
3.3m x 4.0m
Retreat
3.1m x 4.2m
Garage
6.0m x 6.1m
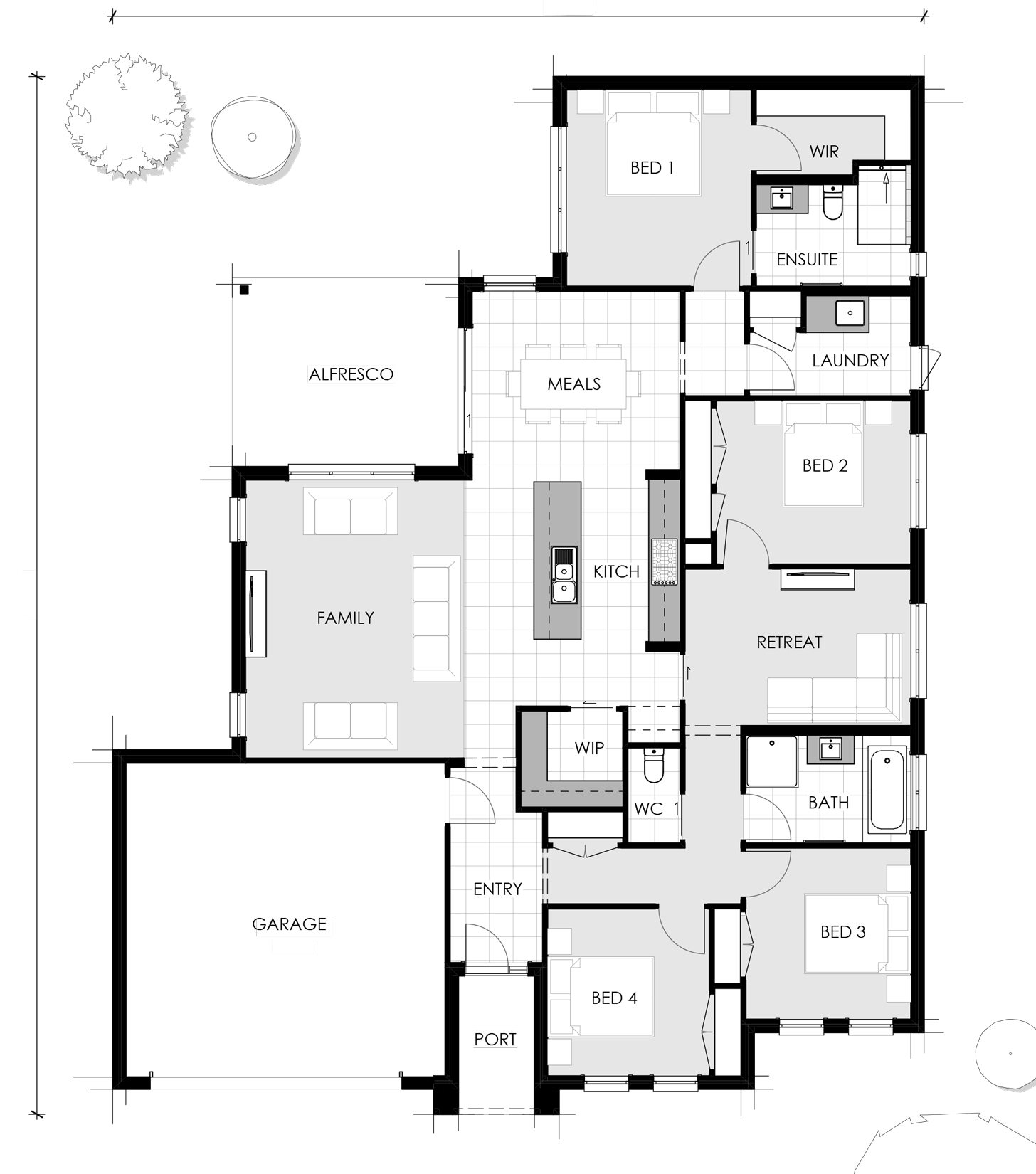
4
2
2
2

Specifications

House
209.04m2 (22.50sq’s)
Garage
41.31m2 (4.45sq’s)
Portico
4.68m2 (0.50sq’s)
Alfresco
18.95m2 (2.04sq’s)
Plan Width
15,470mm
Plan Length
21,250mm
Total
273.98m2 (29.49sq's)

Sizes

Master
3.7m x 3.8m
Bedroom 2
3.1m x 3.7m
Bedroom 3
3.3m x 3.1m
Bedroom 4
3.2m x 3.1m
Family
5.3m x 4.4m
Kitchen
4.1m x 2.8m
Meals
4.0m x 4.4m
Rumpus
4.7m x 3.9m
Study
1.7m x 3.1m
Garage
6.0m x 6.1m
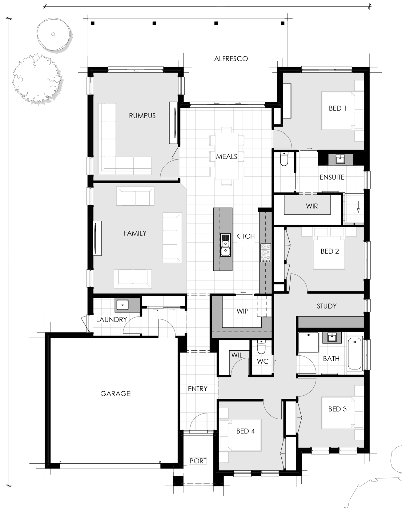
4
2
2
2

Specifications

House
218.26m2 (23.49sq’s)
Garage
41.23m2 (4.44sq’s)
Portico
4.16m2 (0.45sq’s)
Alfresco
29.63m2 (3.19sq’s)
Plan Width
15,470mm
Plan Length
22,290mm
Total
293.28m2 (31.57sq's)

Sizes

Master
3.7m x 3.9m
Bedroom 2
3.1m x 3.7m
Bedroom 3
3.4m x 3.2m
Bedroom 4
3.3m x 3.1m
Family
5.3m x 4.5m
Kitchen
4.1m x 2.8m
Meals
4.8m x 4.4m
Rumpus
5.2m x 4.1m
Study
1.7m x 3.1m
Garage
6.0m x 6.1m
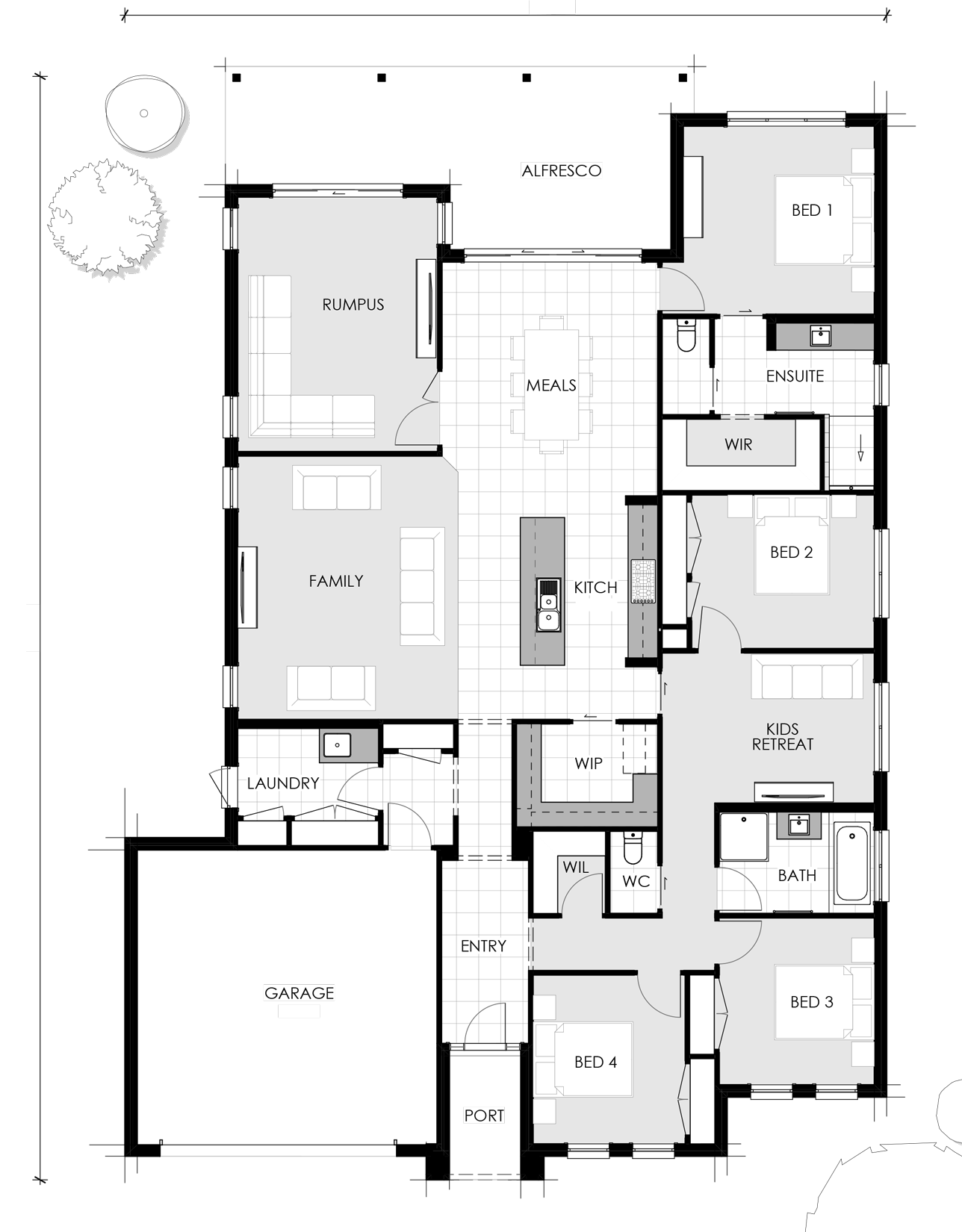
4
3
2
2

Specifications

House
230.40m2 (24.80sq’s)
Garage
41.29m2 (4.44sq’s)
Portico
4.16m2 (0.45sq’s)
Alfresco
28.10m2 (3.02sq’s)
Plan Width
15,470mm
Plan Length
22,410mm
Total
303.95m2 (32.71sq's)

Sizes

Master
3.8m x 3.9m
Bedroom 2
3.1m x 3.7m
Bedroom 3
3.4m x 3.2m
Bedroom 4
3.4m x 3.1m
Family
5.4m x 4.5m
Kitchen
4.5m x 2.8m
Meals
4.8m x 4.4m
Rumpus
5.2m x 4.1m
Kids Retreat
3.2m x 4.3m
Garage
6.0m x 6.1m

Warrnambool

Ballarat

Get in touch

Your details will remain completely confidential, the information collected is only used for initial client contact and is not for emailing of news or updates.