Sidney

Bryan + Petersen has been creating quality, award-winning homes in Victoria for more than half a century.

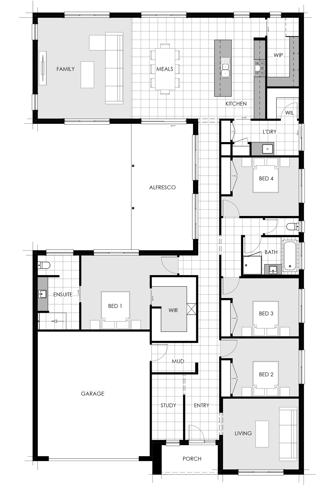
Designed for rear living, this light-filled home is thoughtfully zoned for the modern family. The open-plan kitchen, meals and family area is positioned at the rear, forming a bright and welcoming hub that connects seamlessly to a privately positioned alfresco area set within the centre of the home, ideal for sheltered indoor/outdoor living.

A separate front living room provides a quiet retreat, while the master suite is privately located with a walk-in robe and ensuite. Three additional bedrooms, generous storage and practical spaces including a mudroom and laundry complete this well-balanced design.

Sidney

4
2
2
2

Specifications

House
208.10 m2 (22.40sq’s)
Garage
40.20 m2 (4.33sq’s)
Portico
3.54 m2 (0.38sq’s)
Alfresco
19.47 m2 (2.10sq’s)
Plan Width
13,070mm
Plan Length
20,850mm
Total
271.31 m2 (29.21sq’s)

Sizes

Master
3.3m x 3.7m
Bedroom 2
3.0m x 3.5m
Bedroom 3
3.0m x 3.5m
Bedroom 4
3.0m x 3.5m
Family
4.2m x 5.4m
Kitchen
2.7m x 6.0m
Meals
3.9m x 5.4m
Living
3.7m x 4.0m
Garage
6.0m x 6.0m
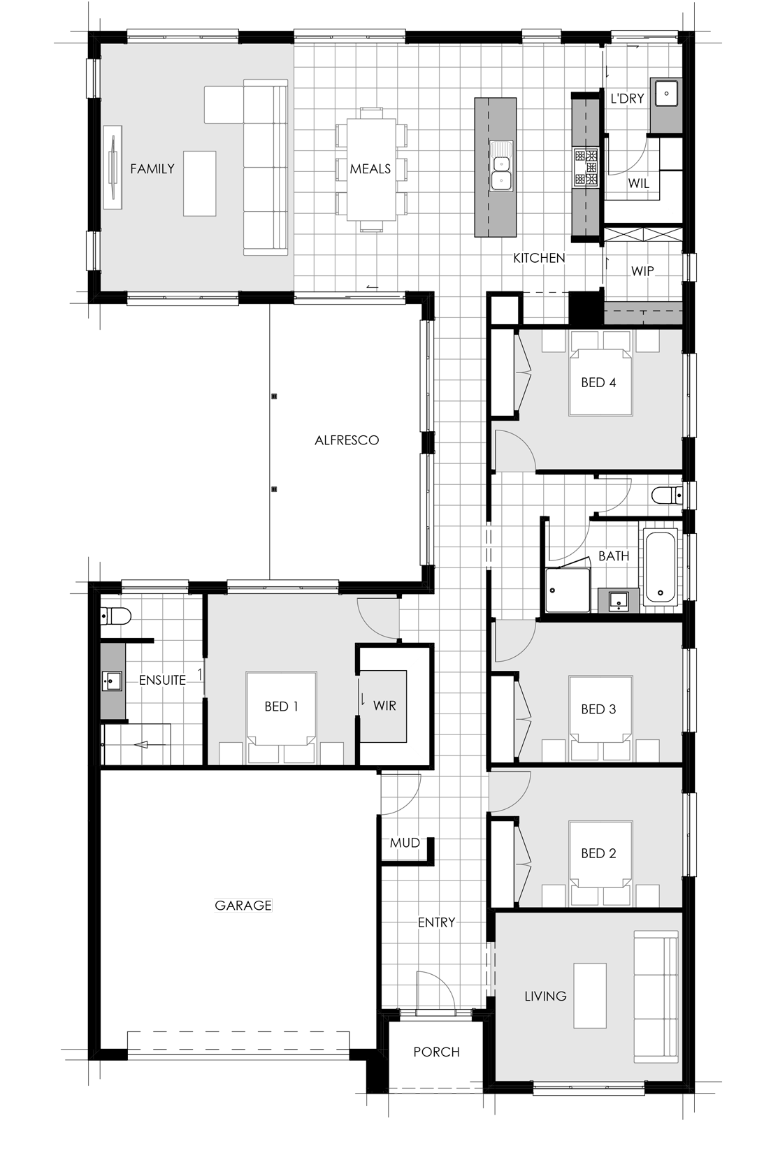
4
2
2
2

Specifications

House
219.52 m2 (23.63sq’s)
Garage
40.88 m2 (4.40sq’s)
Portico
3.76 m2 (0.40sq’s)
Alfresco
21.81 m2 (2.35sq’s)
Plan Width
14,390mm
Plan Length
16,860mm
Total
285.97 m2 (30.78sq’s)

Sizes

Master
3.2m x 4.0m
Bedroom 2
3.1m x 3.6m
Bedroom 3
3.1m x 3.6m
Bedroom 4
3.1m x 3.6m
Family
4.2m x 5.4m
Kitchen
2.7m x 5.4m
Meals
3.9m x 5.4m
Living
3.8m x 4.0m
Garage
6.0m x 6.1m
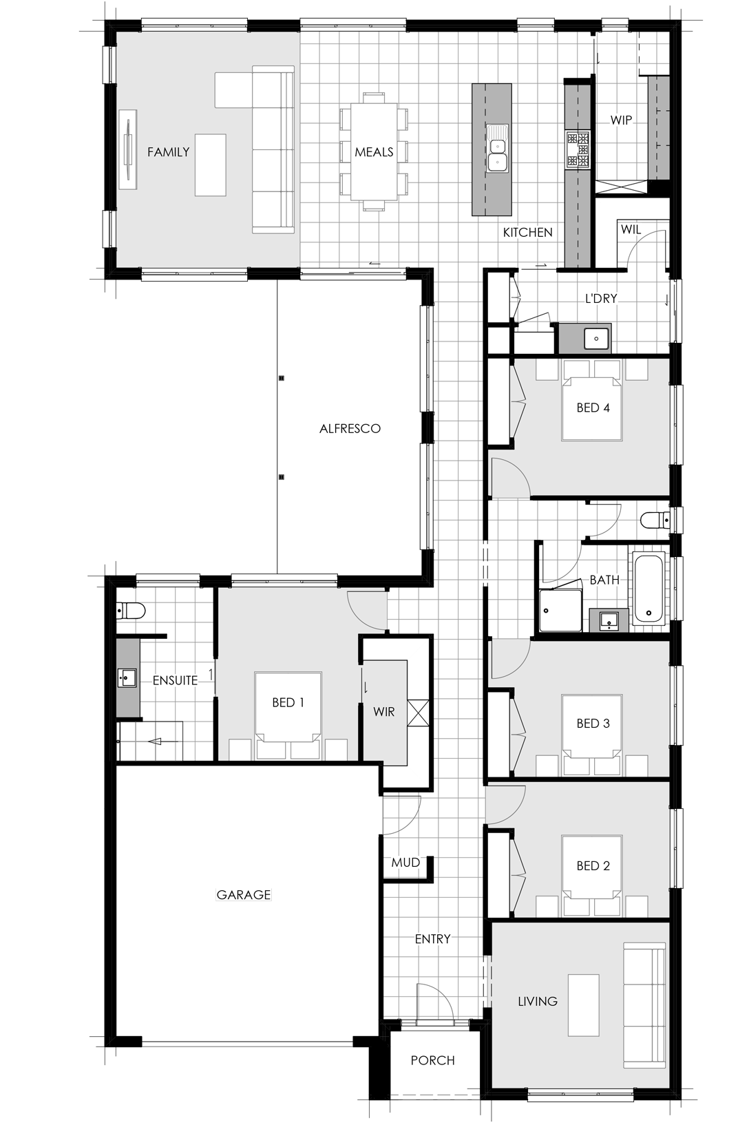
4
2
2
2

Specifications

House
240.88 m2 (25.93sq’s)
Garage
43.99 m2 (4.73sq’s)
Portico
5.34 m2 (0.57sq’s)
Alfresco
21.81 m2 (2.35sq’s)
Plan Width
14,390mm
Plan Length
16,860mm
Total
312.02 m2 (33.58sq’s)

Sizes

Master
3.7m x 4.0m
Bedroom 2
3.1m x 3.5m
Bedroom 3
3.1m x 3.5m
Bedroom 4
3.1m x 3.5m
Family
5.0m x 5.4m
Kitchen
2.7m x 5.4m
Meals
4.4m x 5.4m
Living
3.8m x 4.1m
Study
1.7m x 3.5m
Garage
6.0m x 6.6m
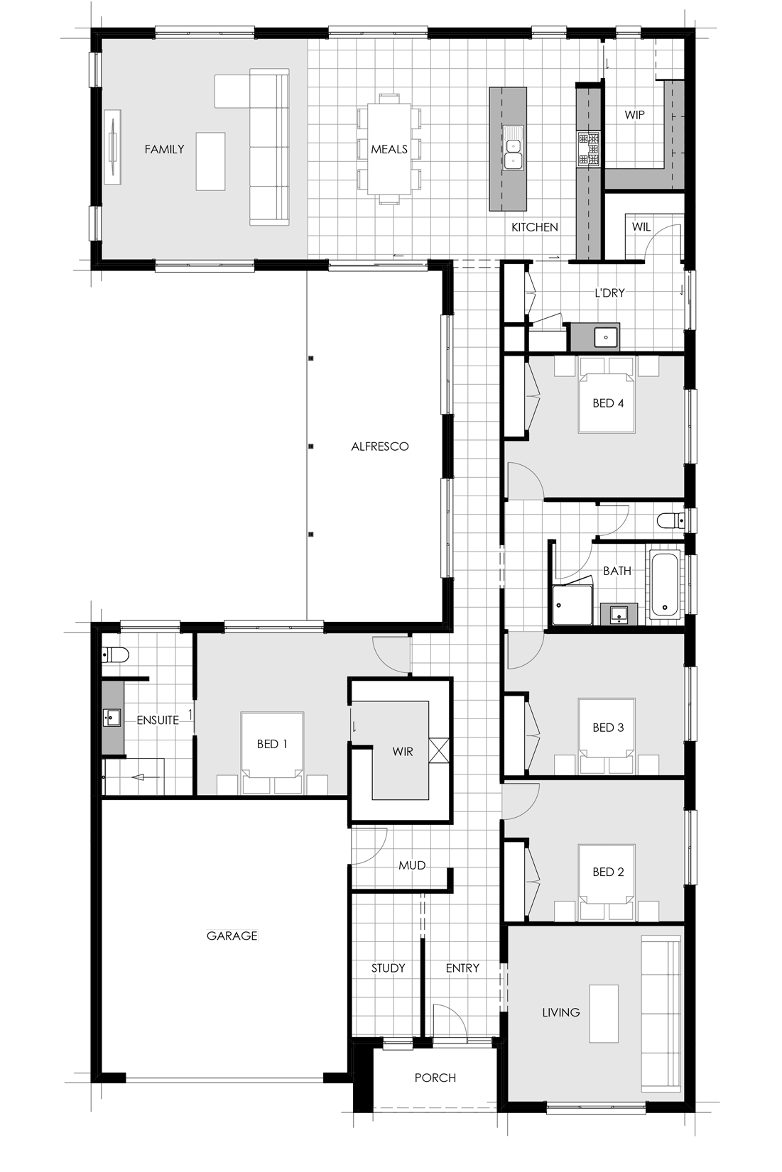
4
2
2
2

Specifications

House
257.75 m2 (27.74sq’s)
Garage
43.99 m2 (4.73sq’s)
Portico
5.34 m2 (0.57sq’s)
Alfresco
27.64 m2 (2.97sq’s)
Plan Width
14,630mm
Plan Length
18,660mm
Total
334.72 m2 (36.01sq’s)

Sizes

Master
3.7m x 4.0m
Bedroom 2
3.5m x 3.8m
Bedroom 3
3.5m x 3.8m
Bedroom 4
3.5m x 3.8m
Family
5.0m x 5.4m
Kitchen
2.7m x 5.4m
Meals
4.4m x 5.4m
Living
4.3m x 4.3m
Study
1.7m x 3.5m
Garage
6.0m x 6.6m

Warrnambool

Ballarat

Get in touch

Your details will remain completely confidential, the information collected is only used for initial client contact and is not for emailing of news or updates.