Warratah

This thoughtfully designed home offers a perfect balance of family living and private retreat spaces.

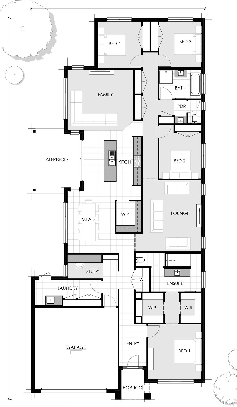
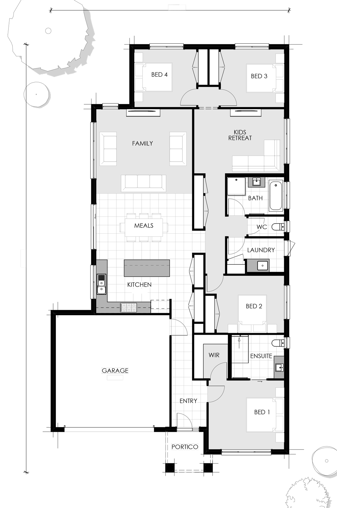
This thoughtfully designed home offers a perfect balance of family living and private retreat spaces. Featuring four bedrooms, including a spacious master with ensuite and walk-in robe, this layout prioritises comfort and functionality. The heart of the home showcases a modern kitchen with a walk-in pantry, flowing seamlessly into the meals and family areas, creating a light-filled, open-concept space. A separate lounge provides a quiet retreat, while the centrally positioned alfresco allows for private outdoor entertaining. With well-planned storage, a dedicated laundry, and a double garage, this home combines style, convenience, and practicality for modern family living.

Warratah

4
2
2
2

Specifications

House
189.62m2 (20.41sq’s)
Garage
40.96m2 (4.41sq’s)
Portico
4.86m2 (0.52sq’s)
Plan Width
12,710mm
Plan Length
22,790mm
Total
235.44m2 (25.34sq's)

Sizes

Master
3.7m x 4.0m
Bedroom 2
3.1m x 3.6m
Bedroom 3
3.1m x 3.4m
Bedroom 4
3.1m x 3.3m
Family
4.5m x 5.1m
Kitchen
2.9m x 3.9m
Meals
3.5m x 5.1m
Kids Retreat
3.4 x 4.8
Garage
6.0m x 6.1m
4
2
2
2

Specifications

House
206.96m2 (22.28sq’s)
Garage
41.40m2 (4.46sq’s)
Portico
4.61m2 (0.50sq’s)
Alfresco
17.26m2 (1.86sq’s)
Plan Width
12,710mm
Plan Length
25,380mm
Total
270.43m2 (29.10sq's)

Sizes

Master
3.8m x 4.2m
Bedroom 2
3.4m x 3.1m
Bedroom 3
3.3m x 3.1m
Bedroom 4
3.3m x 3.2m
Family
4.5m x 4.6m
Lounge
5.4 x 4.3m
Kitchen
4.6m x 2.8m
Meals
4.2m x 3.2m
Alfresco
4.7m x 3.8m
Garage
6.0m x 6.1m
4
2
2
2

Specifications

House
220.95m2 (23.78sq’s)
Garage
41.33m2 (4.45sq’s)
Portico
3.98m2 (0.43sq’s)
Alfresco
16.12m2 (1.73sq’s)
Plan Width
12,710mm
Plan Length
26,100mm
Total
282.38m2 (30.39sq's)

Sizes

Master
4.0m x 4.2m
Bedroom 2
3.4m x 3.1m
Bedroom 3
3.4m x 3.1m
Bedroom 4
3.4m x 3.2m
Family
4.5m x 4.8m
Kitchen
4.6m x 2.8m
Meals
4.7m x 3.5m
Lounge
5.3m x 4.3m
Garage
6.0m x 6.1m
4
2
2
2

Specifications

House
243.61m2 (26.22sq’s)
Garage
40.95m2 (4.41sq’s)
Portico
4.44m2 (0.48sq’s)
Alfresco
16.12m2 (1.73sq’s)
Plan Width
12,710mm
Plan Length
27,900mm
Total
305.12m2 (32.82sq's)

Sizes

Master
4.1m x 3.9m
Bedroom 2
3.4m x 3.1m
Bedroom 3
3.4m x 3.1m
Bedroom 4
3.4m x 3.2m
Family
4.5m x 4.8m
Kitchen
4.6m x 2.8m
Meals
4.6m x 3.5m
Lounge
5.3m x 4.3m
Study
1.8m x 2.5m
Garage
6.0m x 6.1m

Warrnambool

Ballarat

Get in touch

Your details will remain completely confidential, the information collected is only used for initial client contact and is not for emailing of news or updates.